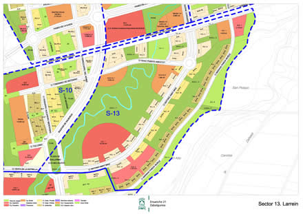
SALBURUA: 13 alderdia LARREIN Salburuako 13 alderdia 10 alderdiaren alboan dago Mendebaldetik, Alto de las Neverasen ondoan Ekialdetik eta trenbidearen alboan Iparraldetik.
357.559 metro karratuko azalera dauka, batez ere etxebizitzetarako xedatua. 1.972 etxebizitza egiteko daude, horietako 104 elkarri atxikitutako etxebizitzak dira, 409 kolektibo askeak eta 1.459 (% 74a) babes ofizialekoak.